Projet 01

Exposition — Projet libre individuel

Quoridor

2025
Projet libre individuel
Académique

Un espace d'exposition qui se joue des conventions — ni cloisonné, ni figé.

Inspiré directement du jeu de plateau Quoridor, ce projet d'exposition développe une expérience immersive autour de la notion de parcours. Comme dans le jeu, des cloisons modulables orientent subtilement les visiteurs sans jamais les bloquer — chaque chemin est possible, mais certains sont plus évidents que d'autres.

L'espace a été pensé pour rompre avec les conventions habituelles de l'exposition muséale : rien n'est cloisonné de façon définitive, offrant une fluidité et une flexibilité totales dans la circulation. Les visiteurs deviennent acteurs de leur propre parcours, redécouvrant à chaque passage une nouvelle configuration de l'espace.

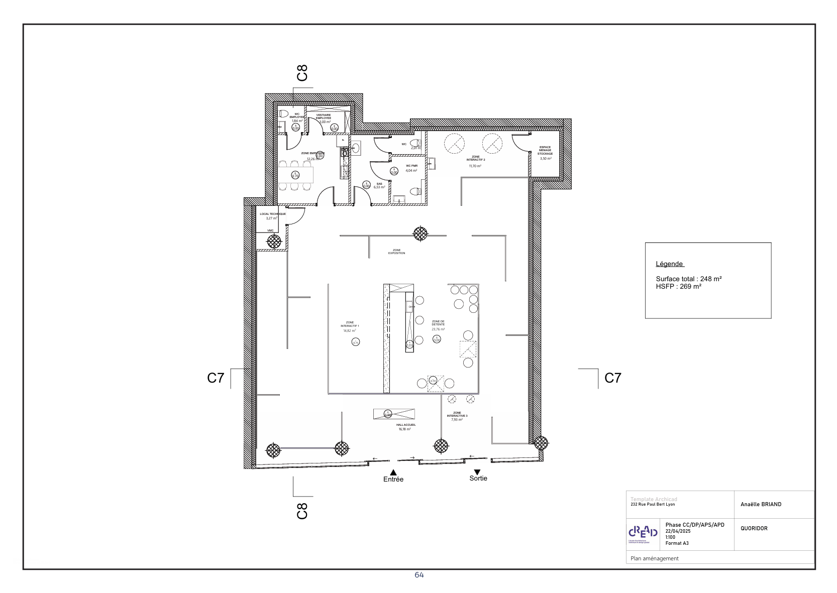
Le projet intègre l'ensemble du processus créatif : définition du cahier des charges, création d'une identité visuelle cohérente, étude marketing et conception d'un système d'aménagement modulable. Les espaces se répartissent entre accueil, zones d'exposition, espaces interactifs, espace détente et sanitaires accessibles PMR.

Plans
Quoridor — rendu exposition
Vue de l'exposition — ambiance générale
Plan d'exposition Quoridor
01 Plan d'aménagement — système modulable
Coupes et élévations Quoridor
02 Coupes & axonométrie
Restaurant Dévo

Projet suivant — 02

Restaurant Dévo

Voir le projet