Restaurant Dévo

Projet 02

Restauration — Cas réel retenu par les clients

Restaurant Dévo

2024
Marseille, France
Groupe Anette
Cas réel en groupe

Une chaleur méditerranéenne authentique — artisanat local, tons bleus apaisants et élégance sobre.

Le restaurant Dévo est un projet de rénovation et d'aménagement pour un futur établissement du groupe Anette, situé à Marseille. Le groupe valorise la tradition méditerranéenne et le terroir à travers une expérience culinaire unique : la cuisson pif — une technique qui place le feu et la matière au cœur du repas.

L'ambiance recherchée fusionne artisanat local, tons bleus apaisants, matériaux naturels et une touche de simplicité élégante inspirée des paysages côtiers. La toile de Jouy, réinterprétée dans une version contemporaine, est intégrée au plafond comme élément structurant — un clin d'œil patrimonial discret.

Les anecdotes et l'histoire du lieu sont réincarnées dans l'aménagement pour créer une expérience à la fois ludique et conviviale. Le projet couvre l'ensemble des espaces : salle principale, terrasse, bar, sas d'entrée et toilettes, chacun pensé comme une extension cohérente de l'identité Dévo.

Ce projet a été retenu par les clients — une validation de l'approche et de la vision développées collectivement par l'équipe.

Plans
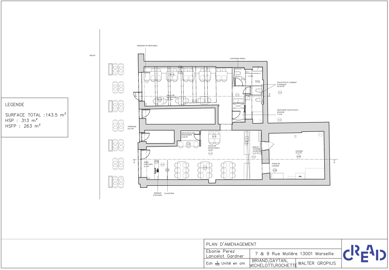
Plan d'aménagement — Salle principale
01 Plan d'aménagement — Salle principale
Plan de démolition
02 Plan de démolition
Moodboard — références Plan 3D — organisation des espaces

Projet suivant — 03

IA & Architecture
d'Intérieur

Voir le projet