Projet 04

Social & Habitat — Réhabilitation

Conception Sociale
des Habitats

2025
Halle Caoutchouc, Lyon
Projet fictif en groupe

Réinventer l'habitat au cœur d'une friche industrielle lyonnaise — lumière, mixité, mémoire.

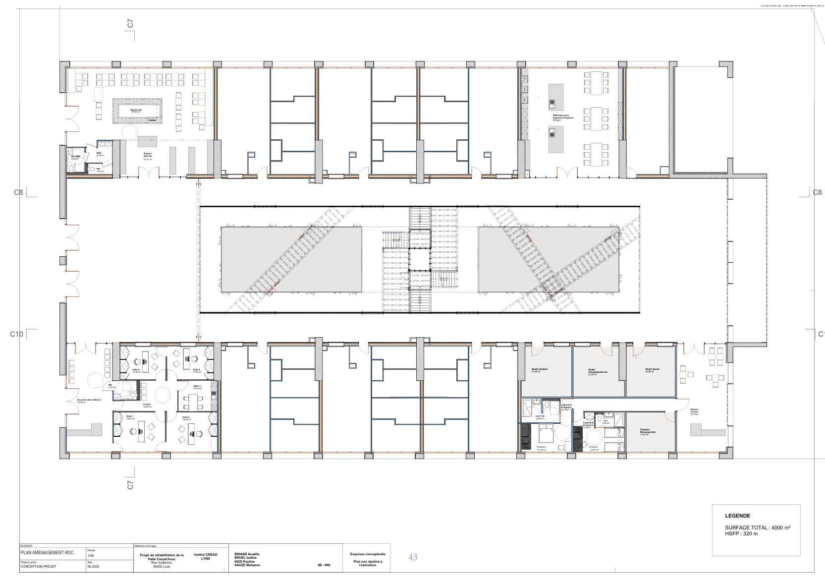
Ce projet académique collectif porte sur la réhabilitation de la Halle Caoutchouc à Lyon, un bâtiment industriel chargé d'histoire dont l'architecture singulière — une verrière centrale à 15 mètres de hauteur — offre une lumière zénithale rare et généreuse.

La conception s'articule autour de deux éléments distinctifs : l'exploitation maximale de cette lumière naturelle exceptionnelle et la préservation d'une esthétique industrielle qui entre en dialogue avec l'histoire du lieu et les futurs résidents.

La répartition des espaces répond à une logique de mixité sociale ambitieuse : 30 % de logements privés à la vente, 25 % de logements sociaux, 25 % d'habitats partagés, et 15 à 20 % dédiés aux circulations. Le groupe a choisi de consacrer la thématique libre aux logements d'urgence, en réponse à la crise du logement en France.

Ma contribution principale a porté sur la réalisation des plans et des coupes techniques, en assurant la cohérence entre le parti pris architectural et les contraintes réglementaires.

Plans
Plan technique — Halle Caoutchouc
01 Plan d'aménagement — distribution générale
Coupes techniques
02 Coupes & élévations techniques
Plan colorimétrique — mixité sociale
03 Plan colorimétrique — répartition des typologies de logements
Infographie programme logements
04 Programme — répartition et surfaces
Infographie données sociales
05 Données — crise du logement en France
Rendu 3D — logement 90m² Rendu 3D — logement 110m² Rendu 3D — réfectoire partagé
Jardin partagé
Jardin partagé — espace de vie collectif
Festival sur le Thé

Projet suivant — 05

Festival sur le Thé

Voir le projet